GEBRUIKTEKOELTOREN.NL

CTS heeft met enige regelmaat de beschikking over één of meerdere gebruikte koeltorens die zijn ingeruild. Veelal uitgevoerd met een hoogkwalitatieve polyester koeltorenkast en wateropvangbak.

Een gebruikte koeltoren wordt door CTS grondig en vakkundig gerenoveerd voordat deze opnieuw verkocht wordt. Indien gewenst wordt de koeltoren op klantwens bijvoorbeeld uitgerust met een ander type koelpakket of in een low-noise uitvoering.

Een statusrapport met aanvullend een opgave van de vervangen componenten wordt bijgeleverd. De thermische performance van de gerenoveerde koeltoren wordt door CTS nauwkeurig berekend.

De prijs van de gebruikte koeltoren is marktconform en na de renovatie beschikt u functioneel over een nieuwe koeltoren die nog vele jaren meegaat.

 

Specialist in koeltorenrevisies
Download de CTS brochure

Een garantietermijn van 12 maanden is standaard. Een eventuele halfjaarlijkse, jaarlijkse of tweejaarlijkse koeltorencontrole met onderhoud is nader overeen te komen.

Indien gewenst kan CTS de koeltoren tegen een meerprijs op locatie plaatsen, aansluiten en geheel in bedrijf stellen.

Contactgegevens
Telefoon: +31 6 5161 4606
Overige gegevens: www.coolingtowerservice.nl


klik op de afbeelding voor een vergroting

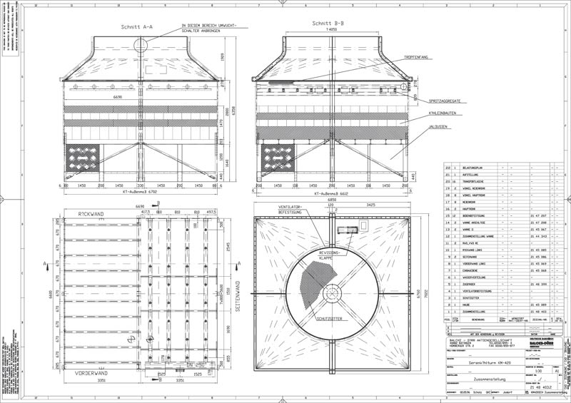
3 stuks Balcke koeltorens (kleur donkergrijs) met afmetingen per cel: L x B = ca. 7 x 7 m. (samengesteld uit 2 delen). De koeltorens zijn ieder voorzien van een eigen waterbassin in twee delen (niet op tekening). De koeltorenconstructie geheel in polyester. Ventilatoraandrijving met motorreductor.

Inclusief: 4 stuks KSB koelwaterpompen, piping en schakelkasten.

Indicatie koelvermogen (per koeltorencel):
Koelvermogen 5.400 kW
Waterintrede temperatuur 33°C
Wateruittrede temperatuur 26°C
Nattebol temperatuur 21°C
Koelwaterdebiet 665 m3/uur

klik op de afbeelding voor een vergroting

Polacel koeltoren (zie foto) met afmetingen: L x B = 4,1 x 3,3 m. in polyester en RVS. Voorzien van een thermisch verzinkte trap met bordes. Ventilatoraandrijving met motorreductor.

Indicatie koelvermogen (per koeltorencel):
Koelvermogen 1.300 kW
Waterintrede temperatuur 33°C
Wateruittrede temperatuur 26°C
Nattebol temperatuur 21°C
Koelwaterdebiet 160 m3/uur

 


klik op de afbeelding voor een vergroting

Polacel koeltoren (zie foto) met afmetingen: L x B = 4,9 x 2,5 m. in polyester en RVS. Ventilatoraandrijving met motorreductor.

Indicatie koelvermogen (per koeltorencel):
Koelvermogen 1.100 kW
Waterintrede temperatuur 33°C
Wateruittrede temperatuur 26°C
Nattebol temperatuur 21°C
Koelwaterdebiet 135 m3/uur

klik op de afbeelding voor een vergroting

2 stuks Balcke koeltorens met afmetingen per cel: L x B = 3,2 x 3,2 m. De koeltorenconstructie geheel in polyester. Ventilatoraandrijving met motorreductor.

Indicatie koelvermogen (per koeltorencel):
Koelvermogen 815 kW
Waterintrede temperatuur 33°C
Wateruittrede temperatuur 26°C
Nattebol temperatuur 21°C
Koelwaterdebiet 100 m3/uur

klik op de afbeelding voor een vergroting

Mesan koeltoren (zie foto) met afmeting: diameter 2,0 m. in polyester en RVS. Ventilatoraandrijving met motorreductor.

Indicatie koelvermogen (per koeltorencel):
Koelvermogen 325 kW
Waterintrede temperatuur 33°C
Wateruittrede temperatuur 26°C
Nattebol temperatuur 21°C
Koelwaterdebiet 40 m3/uur